Przejdź do treści

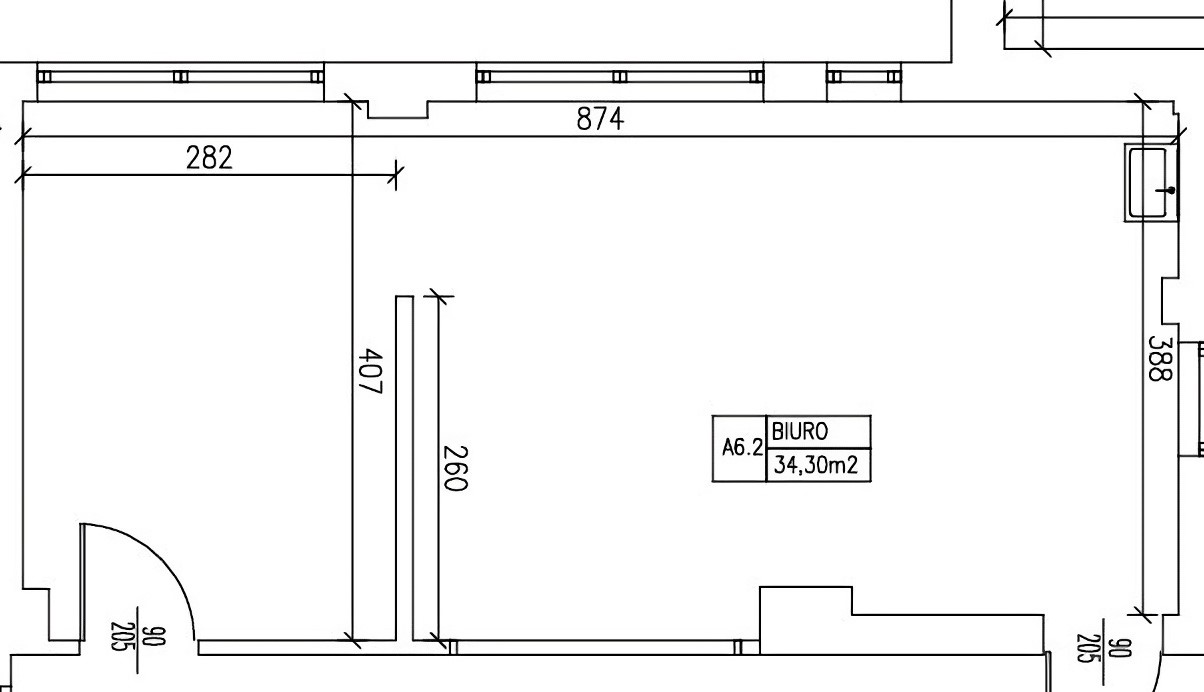
biuro 34,30 m² – Toruń, ul. Polna 105

Szczegóły oferty
Kategoria
biuro na wynajem
Powierzchnia całkowita
34,30 m²
Cena
1 790 zł netto
Lokalizacja
Toruń, ul. Polna 105
Dostępne od
zaraz
Stan wykończenia
gotowe
Ilość pomieszczeń
1
Media
woda, ścieki, prąd, internet (instalacja po stronie najemcy)
Ogrzewanie
miejskie
Klimatyzacja
nie
Parking
nie
Witryna
nie
Piętro
parter

Bez pośredników. Nieruchomość jest naszą własnością.

 

Dostępny: od zaraz

Cena: 1 790 zł netto / miesiąc (w tym woda i prąd)

+ ryczałt za ciepło 300 zł netto/miesiąc

+ ryczałt za wywóz odpadów (wysokość zależna od ilości osób)

Kaucja: w wysokości jednomiesięcznego czynszu + ryczałty brutto

Okres najmu: do uzgodnienia

 

Do wynajęcia przestrzeń o łącznej powierzchni 34,30 m², składająca się z dwóch połączonych pomieszczeń z przyłączem wody i z dwoma niezależnymi wejściami z wspólnego korytarza — idealne rozwiązanie, gdy potrzebujesz strefy obsługi klientów i zaplecza, lub dwóch niezależnych stanowisk pracy w jednym wynajmie. Położenie na parterze ułatwia dostęp. Możliwość aranżacji i adaptacji wnętrza pod działalność biurową, pracownię, gabinet.

Możliwość podłączenia światłowodu od trzech dostawców (we własnym zakresie) oraz umieszczenia tabliczki reklamowej w holu biurowca.

Dodatkowe atuty:

  • parking przed budynkiem,
  • stojak na rowery przed wejściem
  • przystanek autobusowy w bezpośrednim sąsiedztwie.

 

Zainteresowanych zapraszamy do kontaktu i obejrzenia lokalu!